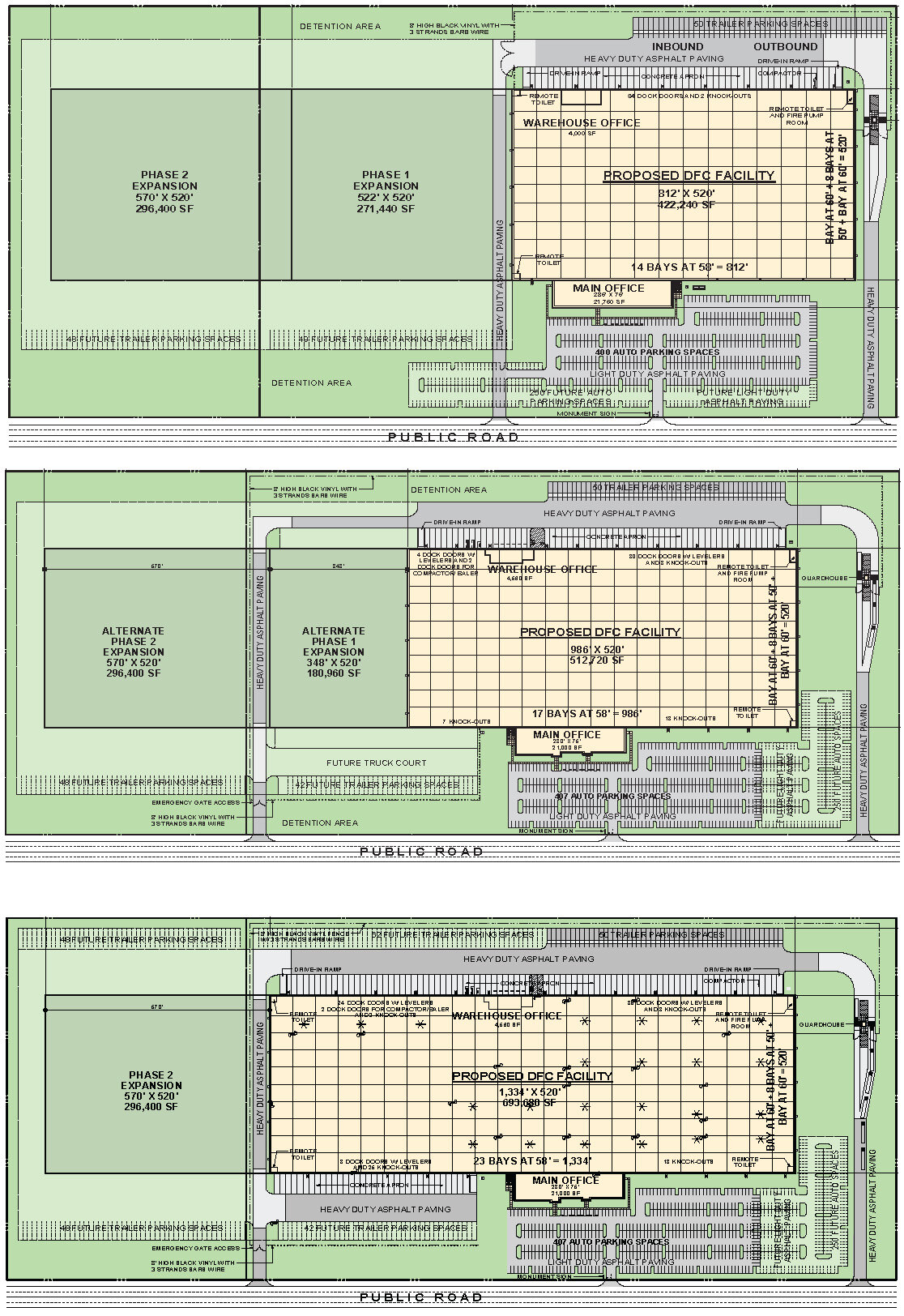
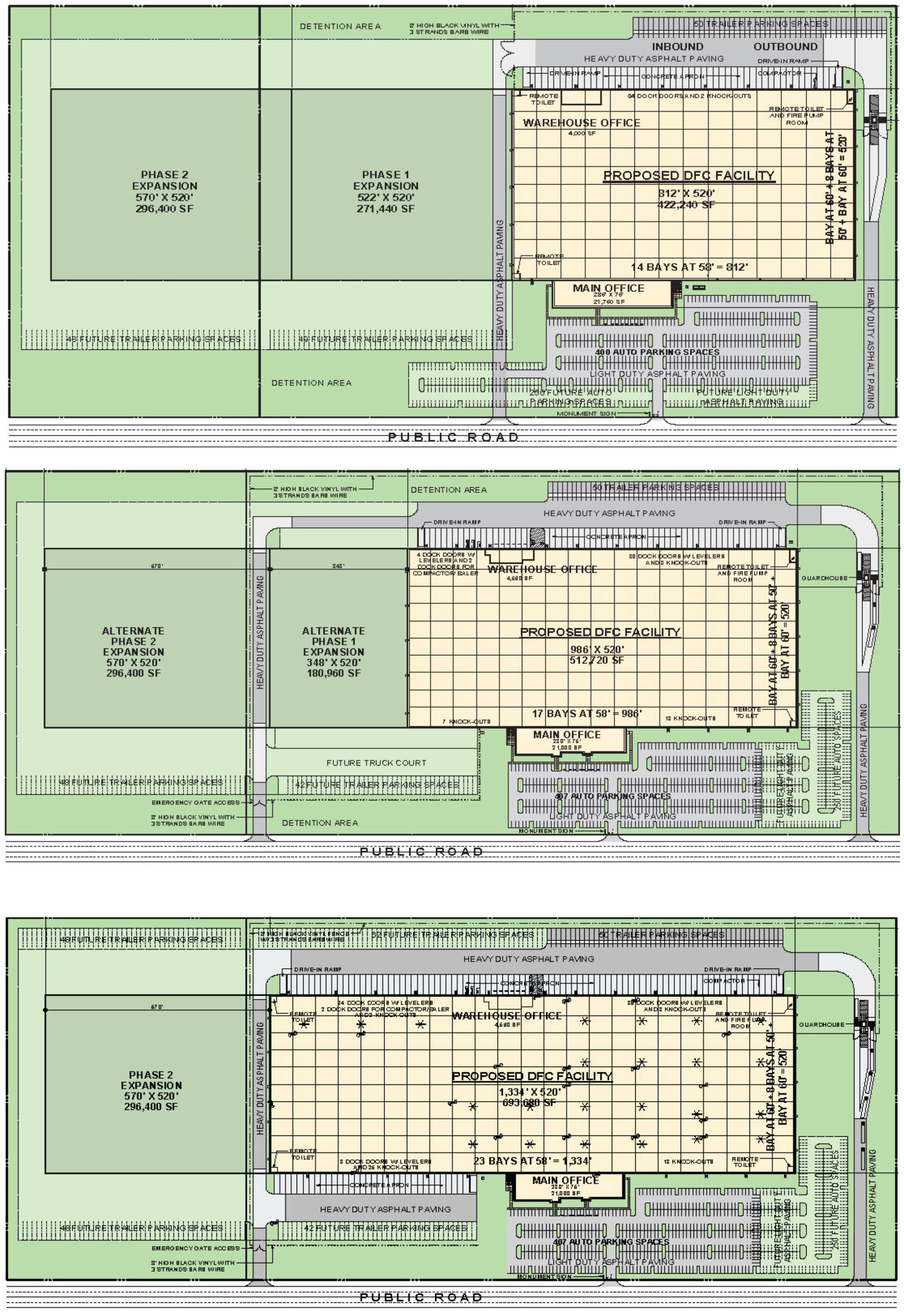
This facility consists of a 520 ft deep warehouse with a 21,000 sf office bump outs. The main office includes a large assembly space that accommodates over 375 people. Accessory offices and support areas are located throughout the warehouse. The warehouse is 36’ clear and constructed of load-bearing concrete tilt-up walls. Steel joist and joist girders support the metal deck, rigid insulation board and single-ply roof membrane. It is “tempered” — heated and cooled, and is fully sprinklered with an ESFR sprinkler system. The distribution area includes a control room, aerosol and maintenance cages.
Clients
- Sephora
- VanTrust Real Estate, LLC
Metrics
- Cross-Dock Distribution
- Warehouse Facility
- 713,366 SF Warehouse
- 20,028 SF Support Space